ARTTU Pracownia Architektury
Pomiń nawigacje
  • start
  • projekty
  • konserwatorskie
  • archiLektura
  • publikacje
  • arttu
  • kontakt
 

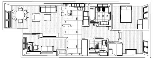
MIESZKANIE CENTRUM, OKOLICE INTRACO

Mieszkanie około 80m2, w centrum Warszawy.

Podstawowym zadaniem było uzyskanie dodatkowego pokoju, przy założeniu, że kuchnia nie musi byc wielka. Należało też znależć miejsce na pralnię.

Oczekiwany klimat - angielski; w łazienkach płytki z kolekcji Zień, z Big Benem. Salon i kuchnia  - płytki ceglane ręcznie formowane w kolorze szarym. Gresy - szary Loft.

Niestety, nie udało się nam podjechać aby sfotografować mieszkanie po wykończeniu.

Projekt - 2010

Realizacja - 2010

współautor - mgr inż arch. Maria Falkiewicz

powrót

p4 (0)
p4 (1)
p4 (2)
p4 (3)
p4 (4)
p4 (5)

o ile nie zaznaczono inaczej wszystkie materiały tu zawarte: © 2001 - 2025 arttu

Darmowy licznik odwiedzin